M Avenue

Project overview

A new contemporary home design for a young family, replacing an existing small cottage.

The modest sloping site was in a street with mostly traditional housing, and a densely wooded public reserve immediately beyond its south-west boundary.

Amongst the design challenges were a brief with tight interior planning yet maximum natural light access whilst also maintaining visual privacy.

Concept renders

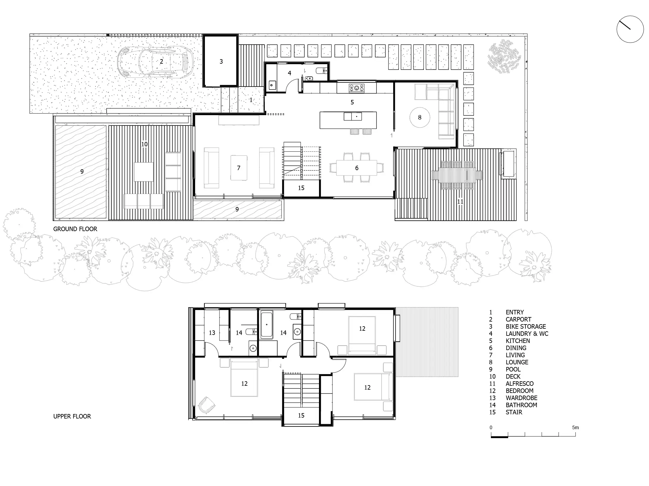
Concept plans

Results

The project was paused and then restarted with a number of design changes. The actual construction started just before the covid lock-downs which had significant impact on the built time, material cost and supply. A number of sub-trades have cancelled their contracts.

In the end, despite the many challenges, the clients were happy with the final result and have since been enjoying living in their new home.

Employer: Furze Design

Builder: iBuilt

Photography: Oliver Crawford