H Road

Project overview

A new semi-rural home design for a retired couple.

Part of a new coastal subdivision, the flat site came with some restrictive design covenants and privacy challenges.

The client liked the idea of using larch wood cladding and the design concept featured this in both natural and charred finish, as a nod to traditional Japanese wood preservation techniques.

Concept renders

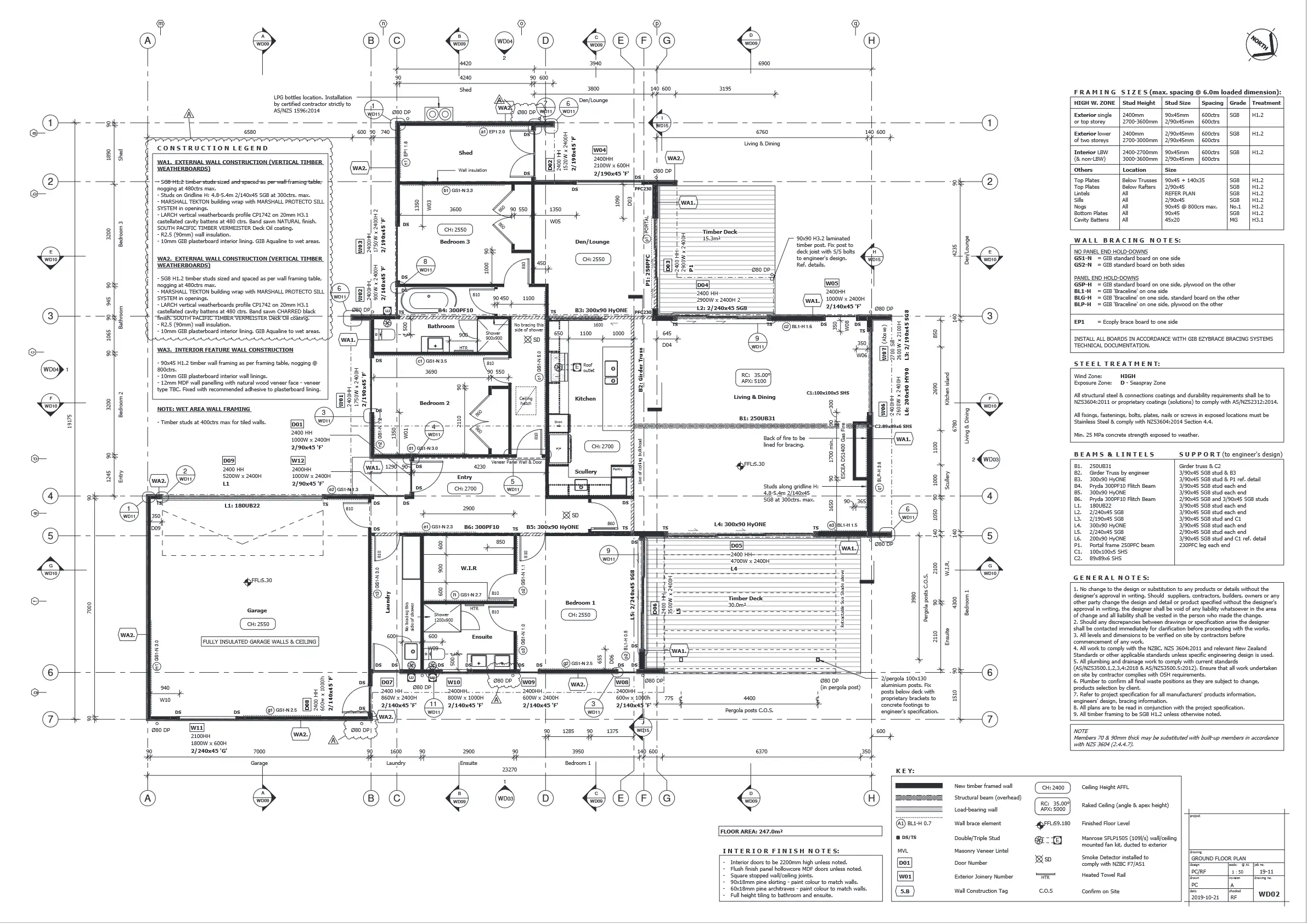
Concept plans

Results

A number of changes to the original design concept were introduced during the project's developed design stage, significantly altering the final built form.

The construction took place during the covid pandemic with further variations due to material supply issues and timing.

However, the clients were very happy with the final result and the project won the RMB 2021 House of the year Gold award for the contractor.

Employer: Furze Design

Builder: Belco Homes

Photography: Amanda Aitken