B Road

Project overview

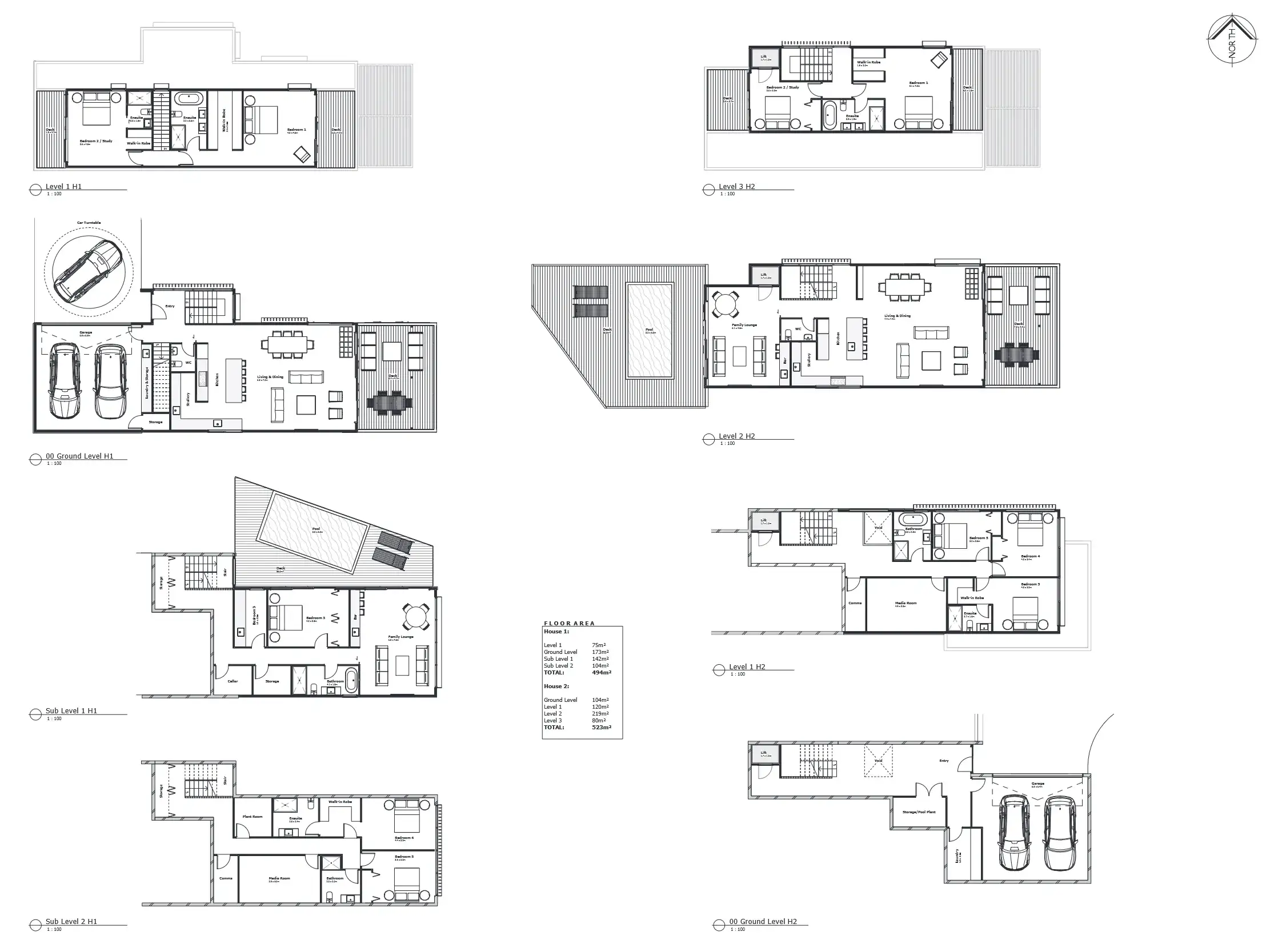
This project was to a developer's brief for two luxury townhouses of approx. 500sqm each on a narrow and steeply sloping site.

Layering large floor plans onto the site and making the most of the sea views whilst also maintaining visual privacy - all within the tight planning controls restrictions - was a real challenge.

Concept renders

Concept plans

Results

My involvement in the project begun at the pre-design stage and finished once the building consent documentation I completed and lodged was approved.

The developer took over and assumed all responsibilities regarding the actual construction phase.

One of the finished buildings is currently for sale by Bayleys Real Estate.

Employer: Furze Design

Developer | Builder: Acacia Wood Investments

Photography: Bayleys Real Estate